

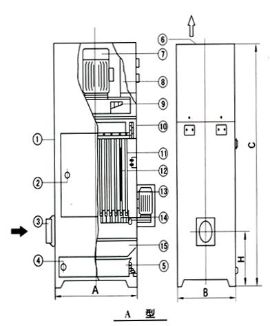
PL型单机袋式收尘器属于机械抖动除尘器,其基本结构由风机、过滤器和集尘器三个部门组成,各部件都安装在一个立式框架内,钢板壳体,烘漆防锈,运行可靠,使用利便。风机采用离心风机,风量大,风压高,并采用消声措施,噪音小。过滤器采用扁布袋组,每个布袋内装有弹簧钢丝网,过滤效果好。清灰机构采用电念头带动偏心轮、连杆使布袋抖动而_沾在滤袋表面的粉尘。此除尘器设有检验门,利便检验和换袋。
.该机组现有十六种规格,分A、B两型。A型设灰斗抽屉、B型不设灰斗抽屉。下部加法兰;由用户直接配接在折包口料仓倒料口,混料库、喷砂箱、皮带运输调头处等扬尘设备上_地除尘,粉尘直接回收。 PL-B型系列单机布袋收尘器技术性能 型号规格 PL-800/B PL-1100/B PL-1600/B PL-2200/B 风量M3/H 800 1100 1600 2200 资用力MMH2O >80 >85 >85 >100 过滤面积M2 4 7 10 12 风机电机功率KW 1.1 1.5 2.2 3 清灰电机功率KW 0.18 0.18 0.18 0.18 过滤风速M/MiN 3.33 2.62 2.66 3.05 净化效率% >99.5 >99.5 >99.5 >99.5 噪声db(A) <75 <75 <75 <75 外形尺寸A×B×CMM 530×520×1040 700×580×1100 740×580×1240 720×660×1330 底法兰寸E×FMM 598×588 768×648 826×666 806×746 重量KG 280 330 470 600 价格(元) 6535 7245 7758 9276 注:1.货用压力即机真空度,系指机器可供使用的压力,是机器进气口实测静压的_值。 PL-B型系列单机布袋收尘器技术性能 型号规格 PL-2700/B PL-3200/B PL-4500/B PL-6000/B 风量M3/H 2700 3200 4500 6000-8000 资用压力MMH2O >120 >100 >100 >150-120 过滤面积M2 13.6 15.3 21.5 25 风机电机功率KW 4 4 5.5 7.5 清灰电机功率KW 0.18 0.18 0.37 0.55 过滤风速M/MiN 3.30 3.48 3.40 3.33-4.5 净化效率% >99.5 >99.5 >99.5 >99.5 噪声db(A) <75 <75 <75 <80 外形尺 寸A×B×CMM 760×680×1380 790×700×1420 900×800×1550 1200×900×1720 底法兰尺寸E×FMM 864×784 894×804 1004×905 1102×1002 重量KG 520 615 815 1190 价格(元) 10680 11393 12938 15901 注:1.货用压力即机真空度,系指机器可供使用的压力,是机器进气口实测静压的_值。 PL-A型系列单机布袋收尘器技术性能 型号规格 PL-800/A PL-1100/A PL-1600/A PL-2200/A 风量M3/H 800 1100 1600 2200 资用压力MMH2O 80 85 85 100 过滤面积M2 4 7 10 12 进气口尺寸mm Φ120 Φ140 Φ150 Φ200 进气口中心离底距H 318 345 418 433 风机电机功率KW 1.1 1.5 2.2 3 清灰电机功率KW 0.18 0.18 0.18 0.18 过滤风速M/MiN 3.33 2.62 2.66 3.05 净化效率% >99 >99 >99 >99 灰箱容积(1) 20 30 40 40 噪声dB(A) 75 75 75 75 外形尺寸A×B×Cmm 530×520×1300 700×580×1400 740×580×1913 720×630×1696 重量Kg 400 550 600 730 价格(元) 6226 7677 8184 9332 PL-A型系列单机布袋收尘器技术性能 型号规格 PL-2700/A PL-3200/A PL-4500/A PL-6000/A 风量M3/H 2700 3200 4500 6000-8000 资用压力MMH2O 120 100 100 150-120 过滤面积M2 13.6 15.3 21.5 30 进气口尺寸mm 200×250 200×300 200×350 220×450 进气口中心离底距H 458 478 478 1295 风机电机功率KW 4 4 5.5 7.5 清灰电机功率KW 0.18 0.18 0.18 0.55 过滤风速M/MiN 3.30 3.48 3.49 3.33×4.5 净化效率% >99 >99 >99 99.5 灰箱容积(1) 55 55 70 105 噪声dB(A) <75 <75 <75 <80 外形尺寸A×B×Cmm 760×680×1798 790×700×1888 900800×2028 120×900 重 量Kg 850 980 1040 1200 价 格(元) 10819 12018 14168 15858
工 作 原 理:
含尘气体进入箱体,由扁布袋过滤器进行过滤,粉尘被阻留在滤袋外表面,已净化的气体通过滤袋进入风机,由风机吸入直接排入室内(也可接管排至室外)。
随着过滤时间的增加、滤袋外表面沾附的粉尘也不断增加、滤袋阻力也相应增加,从而影响除尘效果,采用自控清灰机构进行定时振打清灰或手控清灰机构?;笞远翊蚴胫?,使沾在滤袋外表面的粉尘抖落下来,落到集尘容器(抽屉)中的粉尘由人工拉出_。
项目
2.净化效率大于99.5%是用于中位径100的滑石粉测定数值,测定值_为99.62%,平均为99.6。
3.机器风量是在资用压力时的吸风量。
项 目
2.净化效率大于99.5%是用于中位径100的滑石粉测定数值,测定值_为99.62%,平均为99.6。
3.机器风量是在资用压力时的吸风量。
项目
项 目

冀公网安备13098102000524号