 



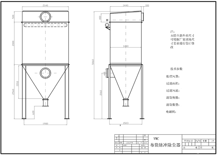
| 项目 | 技术参数 | 单位 | 
| 80袋脉冲布袋除尘器 | DMC-80 | 台 | 
| 处理风量 | 4608 | M³/H | 
| 全过滤面积 | 64 | m2 | 
| 全过滤风速 | 1.2 | m/ min | 
| 脉冲阀数量 | 8 | 个 | 
| 出口粉尘浓度 | <30 | mg/Nm3 | 
| 除尘效率 | ≥99.8 | % | 
| 本体漏风率 | ≤2 | % | 
| 设备阻力 | 1200 | Pa | 
| 滤袋材质 | 涤纶针刺毡 | |
| 滤布纺织工艺 | 针刺 | |
| 滤布缝制工艺 | 三针机缝制 | |
| 滤袋规格 | Φ133×2000 | mm | 
| 滤袋允许使用温度 | ≤130℃ | ℃ | 
| 袋笼规格 | Φ125*1990 | mm | 
| 袋笼材质 | 碳钢 | |
| 袋笼处理工艺 | 硅喷涂 | |
| 滤袋固定及密封方式 | 弹簧涨圈 | |
| 电磁脉冲阀型式及规格 | 1”直角阀 | |
| 清灰气源压力 | (5-7)×105 | Pa | 
| 气源品质 | 良好 | |
| 耗气量 | 0.048 | m3/min | 
| 清灰方式 | 在线清灰 | |
| 检修方式 | ?;?/span> | |
| 控制方式 | PLC自动;手动 | |
| 输灰方式 | 不锈钢手动插板阀 | |
| 引风机功率 | 7.5 | KW | 


冀公网安备13098102000524号